清理旧AutoCAD图纸
in3D Modeling Designheld byJames RocheLast seen:
Contest Ended, Winner(s) have been selected.
-
Open
-
Choosing Finalist
-
Ended
Description:
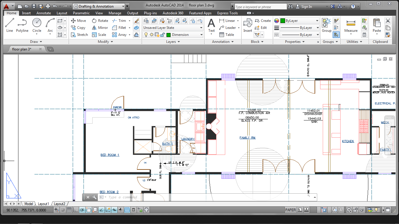
We have old AutoCAD drawings for a 4000sft residence that need to be converted to ACAD 2013 or 2014 including assigning drawing elements to current Architectural CAD layer standards.
Wants:
Quality of sample work, price and turn around time.
Don't Wants:
This is not a design project. We need fast, clean CAD only.
Ask for Sample:
请take a look at the first floor plan and show how you would clean the drawings up.
Software:
- AutoCAD (2013)
Additional Information
Drawings include:2 floor plan Sheets
3 elevation sheets
1 site sheet
*** The layers should be set to current US Cad Layer Standards:
bit.ly/1jsCsym
Entries
Discussion
is the project ended?
You are the winner.
I got the 2nd floor busted it out in record time then hit the site plan. Is this contest still open I seen all where declined but me does that mean I will do the edits to the subsequent drawings as I did.
I am almost done we need to talk about why with this contest I was not paid after the first good submission.
Are you ready to send me the rest of the drawings to update ?????
do you realize most object are grouped due to the translation IE what would be a attributed blocks is a grouped object
在建筑半径标注wings objects are attributed blocks on standard layers
and the colors assigned by layers I worked as a cad manager for architects
how far do you want the edits to go change the groups to blocks or just place them on the correct layers
one example is the column annotation it is a group not a attributed block the interior elevation callouts is a group not a block with attributes where did these file originate/created before said translation
在建筑半径标注wings objects are attributed blocks on standard layers
and the colors assigned by layers I worked as a cad manager for architects
how far do you want the edits to go change the groups to blocks or just place them on the correct layers
one example is the column annotation it is a group not a attributed block the interior elevation callouts is a group not a block with attributes where did these file originate/created before said translation
the newest file format for dwg is 2013 and it seems the us layering standards is needed
do you want a layout for the sheet ie title block in paper space and drawing content in model space
I take it the drawings where not drafted n autocad I get that fron viewing it in Dwg Trueview
do you want a layout for the sheet ie title block in paper space and drawing content in model space
I take it the drawings where not drafted n autocad I get that fron viewing it in Dwg Trueview
By "cleanup old drawings" I mean:
- Assign drawing elements to US CAD standards
- Save (or redraw) as ACAD 2013 or preferably 2014
- Remove obvious translation artifacts (tiny text, very dark and unreadable layer colors)
- Assign drawing elements to US CAD standards
- Save (or redraw) as ACAD 2013 or preferably 2014
- Remove obvious translation artifacts (tiny text, very dark and unreadable layer colors)
Melvein is correct what do you mean by clean up old drawings. If you want this drawing on any version of AutoCAD, I can make it with CAD layers. Yes it will take time but I'll draw it.
When assigning drawing elements to current Architectural CAD layer standards.
Would you like US or UK standards?
Thanks and have a nice day.
Would you like US or UK standards?
Thanks and have a nice day.
Can you please clarify what do you mean by "Clean up old drawings" I can convert this drawing to AutoCAD release 2014, assigning drawing elements to current Architectural CAD layers is a little bit tricky, needs a little bit of time. How many sheets in total for this project? I can do at least (2) two sheets of this kind of drawing in a day and I can work whatever your budget are. Generally, I am working on Mechanical drawings but occasionally I do Architectural drawings to and a bit of electrical/instrumentation as well.
First thank You for give Great Chance to Participate & wining of this Project.
i m done it as per my best Knowledge & Experience.
Mehul Vaidya (Auto-Cad Expert)
i m done it as per my best Knowledge & Experience.
Mehul Vaidya (Auto-Cad Expert)
Similar Contests on Cad Crowd
Creating the St. Maxine Patio Lounger coverrtable to Bench
I would like to have a design for two wood loungers that have a retractable wood piece that can convert the loungers into benches. I would also like to have a table that can retact up into an umbrella with this plan. A wood table that can come down and be the table when its a bench/loveseat and disappear
300 sqm 3D floorplan sketch
I have a land and I'm planning to make a 4 floor building for a residential purpose . The design should be a modern style apartment .the land size is 700 sqm but the allowed space for building is 300 sqm . I need to see 2 different designs as this : First design : The floor should consists of 2 apartments , first apartment to have 3 bedroom and the second apartment to have 2 bedroom . Both apartments must have at least 1 master bedroom , a living room and a hall with setting and dining area . I suggest the size to be 170 for the 3 bedroom and 130 for the 2 bedroom . There should be built in wardrobes . Second Design : Should consist of 2 apartments , first apartment to be a 3 bedroom apartment with all masters and a small clothing room in one of the master rooms. it should have also a big hall , living and children playing room if possible . The size of the apartment should not exceed 230 - 240 sqm . The other studio apartment should not exceed 60-70 sqm . I have attached 3d designs that I really liked but it doesn't fit my land plan . I also have attached an autocad floorplan that has been mad by one of the local designers but it didn't meet my expectations but I attached it for your understanding . Please note that the ground floor apartments should have 2 Entrance , one entrance is the Main stairs entrance that leads to other top floors and the elevator and the other one is a side entrance for each apartment in the ground level . You may notice that the setback area is shown in one of the designs attached which should be mined .
Hard-Hat Clipable Safety Notification System
We're looking for small and sleek aesthetic designs for a hard-hat clipable safety notification system for construction workers to improve their work safety.
Chief Architect Designer - Exterior and Roof Design
Would like a prairie style modern home roof and exterior design based on floor plans. May be creative and please MUST use Chief Architect software. I have version X5 and X6. I have attached pictures of examples of what we are looking for. Please incorporate: -30" overhangs -Low pitch - Raised Entry -Raised Rear Deck
Design the iPhone case to discourage iPhone use
3D model a watertight locking iPhone case, for each sized iPhone, that is designed to discourage iPhone users from using their phone too often.
Prepaid Prize













dtechCADpro