Re-draw and new single family detached house plans for 5 models
inConstruction Drawings所持有的Eagle HomesLast seen:
Contest Ended, Winner(s) have been selected.
-
Open
-
Choosing Finalist
-
Ended
Description:
Re-draw and new single family detached house plans for 5 models.
Wants:
Autocad preferred.
Don't Wants:
Something other than our design prototype
Ask for Sample:
Sample of designers work required before engagement
Software:
- AutoCAD
Additional Information
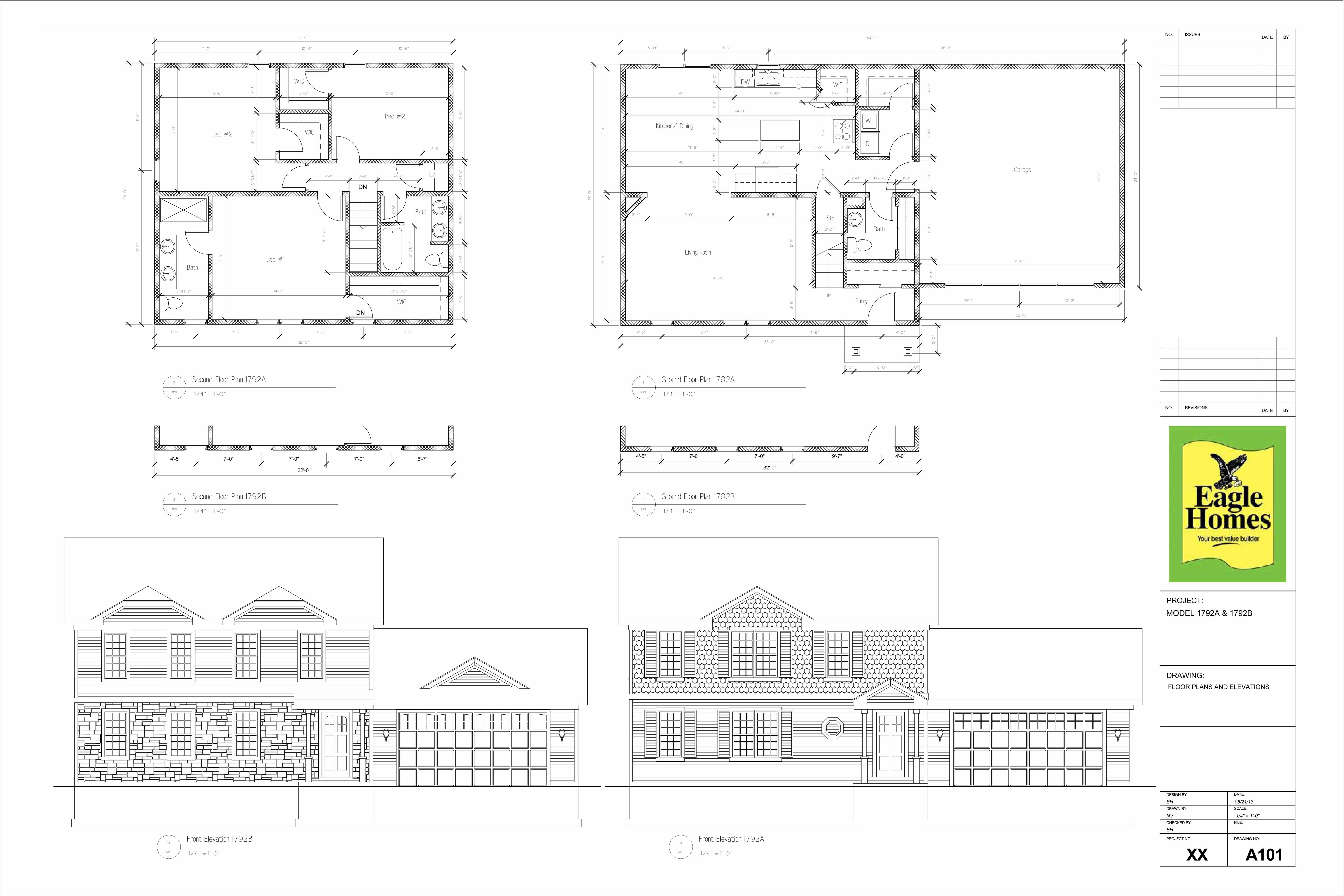
SCOPE OF WORKTYPE OF REQUEST: AUTOCAD RE-DRAW & NEW PLANS FOR SINGLE
FAMILY HOMES W/REVISIONS AND ADD-ONS.
# OF INDIVIDUAL HOUSE PLANS: FIVE (5)
SQUARE FOOTAGE OF HOUSES: 1,008/1,120/1,232/1,400/1,792
DESIGNER TO USE CLIENTS FLOOR
PLANS & ELEVATIONS W/REVISIONS
SCALE TO BE DRAWN AT (ALL): 1/4" = 1'-0" (EXCEPT AS NOTED)
ALL ROOF PITCHES: 6/12
ALL ROOF OVERHANGS: 1'
FILE TYPES TO BE PROVIDED (ALL): dwg and pdf
WORK TO BE COMPLETED BY: 30-Jun-13
PROTOTYPE OF EXPECTED WORK IS AVAILABLE.
ONLY ONE EACH OF THE FOLLOWING IS NEEDED (WILL BE USED FOR ALL HOUSE PLANS):
A. FOUNDATION SECTION - HOUSE: RE-DRAW (SCALE: 1/2"=1'-0")
B. FOUNDATION & WALL SECTION - GARAGE: NEW (SCALE: 1/2"=1'-0")
EACH HOUSE PLAN WILL INCLUDE THE FOLLOWING:
1 FRONT ELEVATION A: RE-DRAW WITH REVISONS
2 FRONT ELEVATION B: RE-DRAW WITH REVISIONS
3 LEFT SIDE ELEVATION: NEW
4后视图:新
5 RIGHT SIDE ELEVATION: NEW
6 FLOOR PLAN (BROCHURE FORMAT): RE-DRAW WITH REVISIONS AND WITH PARTIAL
FLOOR PLAN AS SHOWN (GARAGE EXTERIOR WALLS DRAWN AS 6" WIDE FOR BROCHURE
PURPOSES ONLY)
7 FLOOR PLAN (DIMENSIONED AND LABELED): NEW
8 FOUNDATION PLAN (DIMENSIONED AND LABELED): NEW
Entries
1st Winner
#2Eagle Homes 5 Model Plans Elevations and FoundationbyNickVal
Download Files
- auotcad — MODEL 1008A AND B PLAN AND ELEVATION
- AutoCAD — MODEL 1008A AND B FOUNDATION PLAN
- auocad — MODEL 1120A AND B PLAN AND ELEVATION
- AutoCAD — MODEL 1120A AND B FOUNDATION PLAN
- AutoCAD — MODEL 1232A AND B PLAN AND ELEVATION
- AutoCAD — MODEL 1232A AND B FOUNDATION PLAN
- AutoCAD — MODEL 1400A AND B PLAN AND ELEVATION
- AutoCAD — MODEL 1400A AND B FOUNDATION PLAN
- AutoCAD — MODEL 1792A AND B PLAN AND ELEVATION
- AutoCAD — MODEL 1792A AND B FOUNDATION PLAN
Jun 30, 2013 2:18
Discussion
嗨,鹰,
Can you please provide a sample file for following layers and other things. Is the dimensions for all the houses are similar to prototype, i mean by door, window etc.. sizes.
重绘的意思,有dwg文件效果able which needs to amended or need draw as per pdf file?
If any data is missing can it assumed. Before awarding the project, do you need a sample dwg and which one you require.
Can you please provide a sample file for following layers and other things. Is the dimensions for all the houses are similar to prototype, i mean by door, window etc.. sizes.
重绘的意思,有dwg文件效果able which needs to amended or need draw as per pdf file?
If any data is missing can it assumed. Before awarding the project, do you need a sample dwg and which one you require.
Ken,
Do you want all drawings competed or just a sample of work for this submittal?
Thanks,
Karen
Do you want all drawings competed or just a sample of work for this submittal?
Thanks,
Karen
NICK, I NEED HELP HERE. I DON'T KNOW IF WHAT I SUBMITTED IS SUFFICIENT, TOO MUCH OR TOO LITTLE, TOO CONFUSING, OR WHATEVER. PLEASE ADVISE FOR, AGAIN, THIS IS THE FIRST USING CADCROWD.COM.
KEN WISNIEWSKI
KEN WISNIEWSKI
NICK, WE FOUND THE ATTACHMENT UPLOAD FOR THE PROTOTYPE, CURRENT FLOOR PLANS & ELEVATIONS.
SCOPE OF WORK
TYPE OF REQUEST: AUTOCAD RE-DRAW & NEW PLANS FOR SINGLE
FAMILY HOMES W/REVISIONS AND ADD-ONS.
# OF INDIVIDUAL HOUSE PLANS: FIVE (5)
SQUARE FOOTAGE OF HOUSES: 1,008/1,120/1,232/1,400/1,792
DESIGNER TO USE CLIENTS FLOOR
PLANS & ELEVATIONS W/REVISIONS
SCALE TO BE DRAWN AT (ALL): 1/4" = 1'-0" (EXCEPT AS NOTED)
ALL ROOF PITCHES: 6/12
ALL ROOF OVERHANGS: 1'
FILE TYPES TO BE PROVIDED (ALL): dwg and pdf
WORK TO BE COMPLETED BY: 30-Jun-13
PROTOTYPE OF EXPECTED WORK IS AVAILABLE.
ONLY ONE EACH OF THE FOLLOWING IS NEEDED (WILL BE USED FOR ALL HOUSE PLANS):
A. FOUNDATION SECTION - HOUSE: RE-DRAW (SCALE: 1/2"=1'-0")
B. FOUNDATION & WALL SECTION - GARAGE: NEW (SCALE: 1/2"=1'-0")
EACH HOUSE PLAN WILL INCLUDE THE FOLLOWING:
1 FRONT ELEVATION A: RE-DRAW WITH REVISONS
2 FRONT ELEVATION B: RE-DRAW WITH REVISIONS
3 LEFT SIDE ELEVATION: NEW
4后视图:新
5 RIGHT SIDE ELEVATION: NEW
6 FLOOR PLAN (BROCHURE FORMAT): RE-DRAW WITH REVISIONS AND WITH PARTIAL
FLOOR PLAN AS SHOWN (GARAGE EXTERIOR WALLS DRAWN AS 6" WIDE FOR BROCHURE
PURPOSES ONLY)
7 FLOOR PLAN (DIMENSIONED AND LABELED): NEW
8 FOUNDATION PLAN (DIMENSIONED AND LABELED): NEW
NOTE: THIS IS THE FIRST TIME USING CAD CROWD. HOW DO WE GET THE PROTOTYPE, CURRENT
FLOOR PLANS & ELEVATIONS TO THE DESIGNER?
TYPE OF REQUEST: AUTOCAD RE-DRAW & NEW PLANS FOR SINGLE
FAMILY HOMES W/REVISIONS AND ADD-ONS.
# OF INDIVIDUAL HOUSE PLANS: FIVE (5)
SQUARE FOOTAGE OF HOUSES: 1,008/1,120/1,232/1,400/1,792
DESIGNER TO USE CLIENTS FLOOR
PLANS & ELEVATIONS W/REVISIONS
SCALE TO BE DRAWN AT (ALL): 1/4" = 1'-0" (EXCEPT AS NOTED)
ALL ROOF PITCHES: 6/12
ALL ROOF OVERHANGS: 1'
FILE TYPES TO BE PROVIDED (ALL): dwg and pdf
WORK TO BE COMPLETED BY: 30-Jun-13
PROTOTYPE OF EXPECTED WORK IS AVAILABLE.
ONLY ONE EACH OF THE FOLLOWING IS NEEDED (WILL BE USED FOR ALL HOUSE PLANS):
A. FOUNDATION SECTION - HOUSE: RE-DRAW (SCALE: 1/2"=1'-0")
B. FOUNDATION & WALL SECTION - GARAGE: NEW (SCALE: 1/2"=1'-0")
EACH HOUSE PLAN WILL INCLUDE THE FOLLOWING:
1 FRONT ELEVATION A: RE-DRAW WITH REVISONS
2 FRONT ELEVATION B: RE-DRAW WITH REVISIONS
3 LEFT SIDE ELEVATION: NEW
4后视图:新
5 RIGHT SIDE ELEVATION: NEW
6 FLOOR PLAN (BROCHURE FORMAT): RE-DRAW WITH REVISIONS AND WITH PARTIAL
FLOOR PLAN AS SHOWN (GARAGE EXTERIOR WALLS DRAWN AS 6" WIDE FOR BROCHURE
PURPOSES ONLY)
7 FLOOR PLAN (DIMENSIONED AND LABELED): NEW
8 FOUNDATION PLAN (DIMENSIONED AND LABELED): NEW
NOTE: THIS IS THE FIRST TIME USING CAD CROWD. HOW DO WE GET THE PROTOTYPE, CURRENT
FLOOR PLANS & ELEVATIONS TO THE DESIGNER?
Thank you for the invitation to work on your project and I'm looking forward to starting the project as soon as there are enough information available and approval from Cadcrowd management. If you have any questions, please feel free to ask.
Nick,
Nick,
Similar Contests on Cad Crowd
Mechanical engineer for construction and building design
We are an engineering group looking for a native English senior professional with a degree and experience in mechanical engineering, to be part of our remote collaborators. It is indispensable to have real practical experience in one specialty related to the preparation of documents for the definition and construction of systems, equipment and elements for new and existing facilities.
Ting Casita
planning to put a simple Casita in my third garage. Friend will do the construction for me,need a reasonable price person to draft a plan for the city to approve. Please code me an approximate price. Its a 20'x30' garage, the city allows to build a 20'x10' casita out of it.So the Casita is only 200SF.
Universal Washroom Floor Plan - Layout Design in AutoCAD
This layout and design is for the building permits for a barrier free washroom. This washroom needs to meet the Alberta Building Code in terms of barrier free design (handicap accessible) and construction, but also has to have the smallest footprint possible. It is a free standing washroom in an industrial condo bay which is mostly unfinished. Essentially the washroom is freestanding on 3 sides on the 4th side backs up against a perimeter wall of the bay. (I have attached a rough sketch to give you an idea) There is already a washroom in place but it was not built to the Alberta Building Code so I need to correct this issue. The winner will have a solid understanding of what is required for building permits. I can provide the specifications for a barrier free washroom if desired, but the designer must come up with a cost effective and structurally sound solution.
Building Envelope Details
We have several projects coming up that require CAD services. They would include plans, elevations, details, and some 3-D models/renderings. For this contest create a detail from a simple sketch and a new title block for us so we can see your skills.
Steel Detailing of Waste Water Treatment Plant - Drafting with Tekla Structures
We need shop drawings for Various walkways, stairs, handrails, pipe supports, grated manhole covers associated with the construction of an inlet works structure at waste water treatment plant.
Prepaid Prize

vins