Remodel one area in the old houseBlind
inInterior Designheld byTamirLast seen:
Contest Ended, Winner(s) have been selected.
-
Open
-
Choosing Finalist
-
Ended
Description:
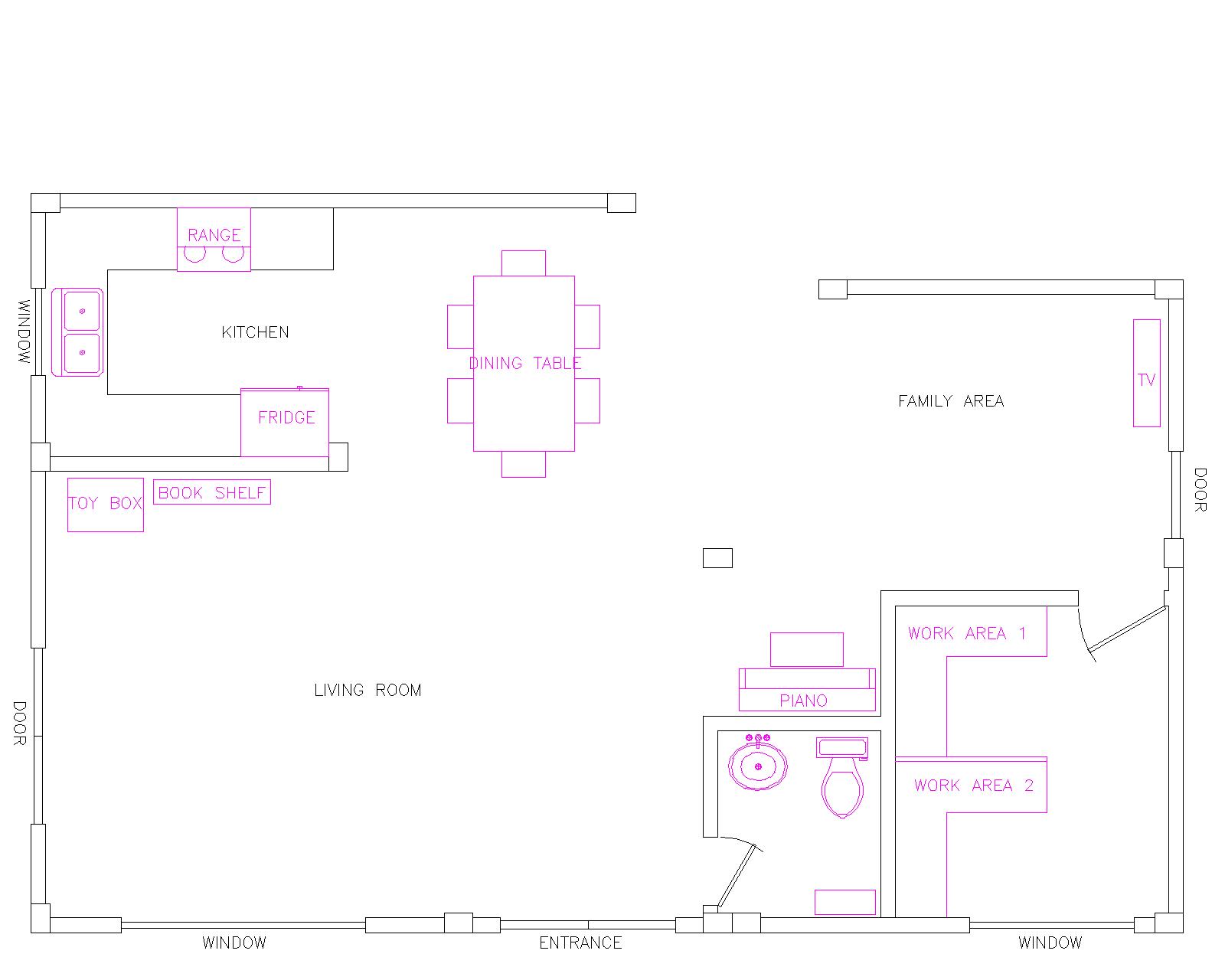
Given one of 25 years old house's floors. The task is to turn it into the modern family area1)扩大厕所旁边的入口
2) Zone A: kitchen and living room
3) Zone B: office (with door) and family area (without door)
4) Zone A must contain a table for at least 6-8 persons (can be moved, opened)
5) Zone A is intended for kids, so it must include toys/book storage. Also, you should consider proper illumination
6) Exit to the large backyard is from Zone A
7) Exit to the parking lot is from Zone B
8) There is also the main entrance (marked)
9) Zone B should have a TV and electric piano (in the family area)
10) Office must have at least 2 workplaces
You CAN
1) Move/remove/change all internal walls
2) Change/remove/add windows
3) Remove ceiling in area A
Wants:
1)所有区域和细节应方便2) Areas should get the advantage of the natural light (sunny weather is 10 months a year)
3) Efficient use of space
Don't Wants:
You CANNOT1) Remove or move pillars (marked and made of concrete 30х20 and 60х20)
2) Change external walls
Ask for Sample:
Rendered sample with a clear view and details Sketch of the floorplanEntries
#9Remodel of old housebyabhib
Download Files
- pdf 2020 — notes
- 修剪ble SketchUp (Google) 2020 — living room option 2
- 修剪ble SketchUp (Google) 2020 — LIVING ROOM OPTION 1
- 修剪ble SketchUp (Google) 2020 — toy shelf option 2
- 修剪ble SketchUp (Google) 2020 — lIVING ROOM OPTION 1 VIEW 2
- 修剪ble SketchUp (Google) 2020 — kitchen view
- 修剪ble SketchUp (Google) 2020 — family living option 2
- 修剪ble SketchUp (Google) 2020 — 3d floor plan option 2
- 修剪ble SketchUp (Google) 2020 — modified plan option 2
- 修剪ble SketchUp (Google) 2020 — modified plan option 1
Dec 30, 2020 19:37
#7OldHOuse 878byecooco
Download Files
- 修剪ble SketchUp (Google) 2020 — FP-Af
- Filmora Wondershare Video Editor 2016 — ToyOrg 02 animo - 24fps 640x480
- Rendering Images — Media Room
- Rendering Images — Family Room
- Rendering Images — View at Entry
- Rendering Images — Kitchen - DR
- Rendering Images — Living Room 3OPb
- Rendering Images — Living Room 1
- 修剪ble SketchUp (Google) 2020 — FP-Bf
- 修剪ble SketchUp (Google) 2020 — FP BWPS
- 修剪ble SketchUp (Google) 2020 — FP PS
- Adobe Acrobat Pro 2017 — Description
- Rendering Images — Living Room 2
Dec 26, 2020 23:33
Discussion
Showing last 20 comments -View All
Have you made a decision yet with the project?
@ecooco You are correct.
Hi Tamir
Sorry but it is clear. You ask about to "Remodel one area in the old house", and you favor just one AutoCAD drawing layout.
It is some kind misunderstanding.
Regard
Sorry but it is clear. You ask about to "Remodel one area in the old house", and you favor just one AutoCAD drawing layout.
It is some kind misunderstanding.
Regard
Hi Tamir
Can you review and rate all the design concepts that we have submitted or if they are not suitable you can decline the design. Because by doing so you mean appreciating the efforts of the designers who have tried to help you. And Please help with your cooperate
Thank you
Can you review and rate all the design concepts that we have submitted or if they are not suitable you can decline the design. Because by doing so you mean appreciating the efforts of the designers who have tried to help you. And Please help with your cooperate
Thank you
@North Chelsea Home.
Windows are marked (yet faded). The reason is that I am open to move/change all windows and entryways.
The backyard is on the left and upper part of the screen. The entry today is next to the pole in area A.
Both areas A and B are at the same level.
The Upper (faded) part of the screen is the upper level (5 steps) and out of scope for this contest
Windows are marked (yet faded). The reason is that I am open to move/change all windows and entryways.
The backyard is on the left and upper part of the screen. The entry today is next to the pole in area A.
Both areas A and B are at the same level.
The Upper (faded) part of the screen is the upper level (5 steps) and out of scope for this contest
Hello,
Are you able to attach a layout marking the windows?
I also see that there's a large back yard and parking lot; where are the entryways to those areas? They may be shown in the elevations, but those aren't quite clear.
Are you able to attach a layout marking the windows?
I also see that there's a large back yard and parking lot; where are the entryways to those areas? They may be shown in the elevations, but those aren't quite clear.
#increaseprize
@paulj
You do not have to participate if you do not want to.
我uploaded the main measurements and some basic info to help participants to understand the area.
This contest from my perspective is to identify an architectural designer who can be potentially proposed to get a full contract for the renovation of this house.
You do not have to participate if you do not want to.
我uploaded the main measurements and some basic info to help participants to understand the area.
This contest from my perspective is to identify an architectural designer who can be potentially proposed to get a full contract for the renovation of this house.
@abhib
Yes, the backyard is on the left of Zone A and surrounding the house.
Right from Zone B is parking.
Yes, the backyard is on the left of Zone A and surrounding the house.
Right from Zone B is parking.
Can you specify where is backyard? Is it to the left of Zone A?
@Archylines Yes, it is intended to be a dining table
Give advance everything will be as per your requirement
hello, you said zone A must contain a table for at least 6-8. is the table going to be a dining table
@derrickarbiol Upper left corner points to North.
the measurements are edge to edge.
the measurements are edge to edge.
Also, the columns to column measurements are center to center? or is it edge to edge? Thank you
Hello, can I ask where is the North of the plan?
@Jason
我在寻找灵感。结果应该clearly explain the proposed concept. It can be 2D or 3D or sketch, or anything which clearly explains the proposal.
我在寻找灵感。结果应该clearly explain the proposed concept. It can be 2D or 3D or sketch, or anything which clearly explains the proposal.
The attached photo is not obvious
Please specify If you are looking for a 2D or 3D floorplan in AutoCAD, with 3D Rendering. Will need some sort of a sketch of the existing floor plan to work with. Thanks and have a good day.
@rehenraza
You should propose a floorplan (internal walls, items' placement, etc). You can do it either in 2D or render it in 3D. This will be used as a reference for the actual design.
You should propose a floorplan (internal walls, items' placement, etc). You can do it either in 2D or render it in 3D. This will be used as a reference for the actual design.
Similar Contests on Cad Crowd
Brian Nolan
Remodelling the downstairs of our home. Look for serious inspiration for the interior of what will be the main kitchen/dinner with family space. Look for idea's on design layout, colours and styles. Key considerations are: Closing off the double doors in the room. Perhaps an Island (doesn't have to be there) Location of Stove is very important. Extra storage space Island to include sink, working area and hob. North wall with Stove is a feature wall. Looking for an erogomic design to freedom on movement for 2 people i.e access dishwasher while cooking Love modern Consider a two-sided booth area
Modern Urban Indian Restaurant
I am looking for upgrading the interior for QSR Indian Brand
Favare Grande
I just acquire a property at the beach and I want to build my family retreat where all my siblings and parents can come. The property is 758m2 and is almost 20x40 in both side. Check the following video to understand what I want.
Ashland Haus - Musician's Living Room Design Project
为我们的客厅设计功能布局。交流TUAL MEASUREMENTS: North and South Wall: 14’5” (TV is centred on north wall) East Wall to Step: 10', Step: 4’4”, Step to wall 1’3” West Wall: 15’ 2”, Both sides of sliding door from casing: 2’6” GUITAR STAND: 3’ L x 1’9” W AMPS: 2’4" Width x 1’4" depth x 3’8" height PEDAL BOARD: 1’5" x 2' pedal board TV 3’10" x 2’3" SPEAKERS: 3’2" h x 8" w x 1’2" depth ART OPTIONS: Jimmy 37” all around Pixies 30" x 23" (moss green mat) Existing Abstract Tree/Forest Scene Use existing sectional (3000 series - Broadway Toffee leather colour), and two Morten recliners we’ve yet to purchase and need to coordinate with sectional, (https://images.palliser.com/specsheet/en/MORTEN.pdf?_ga=2.171378280.910018897.1537736691-910106694.1537208390) For Grade/Colour selection, options here (Grades 1000 - 3000 series only): http://www.leatherbydesign.com/leather1000 We like colour and we like black too. Tables we’re considering are included, but not mandatory - Herman Miller polygon table series, we were thinking a grouping of two or three with the sectional (http://store.hermanmiller.com/search?q=polygon+tables&lang=en_CA). Millwork design for TV area is required and elsewhere if necessary (we can do CAD drawings, so graphic representation is fine). We were thinking of a floor to ceiling wall covering just behind the TV and then wall mounting the components to clean things up. It could be raised from the wall to hide cords, etc. Could have storage on either side and underneath the TV. Shelving is an option too. We’re open, these are just some ideas. Plants are also encouraged. Notes about millwork on the TV wall - there is a return air that can’t be covered on the RHS, so floating cabinets or shelving on that side is ideal. We are open to changing speakers to some that could sit on shelving if necessary, but we also like the ones we have now if they can be neatly incorporated, since they sound amazing. We have access to custom high end finishing, so these aspects are to be factored into the design where possible/necessary. (wallcovering, upholstery, millwork, paint/lacquer; see https://www.crownwallpaper.com/ for options for upholstery for pillows and wallcoverings) Have some fun with that. We are not committed to any furniture configuration, but there’s obviously limitations. Our sectional could be moved to underneath the pony wall, however the TV can’t be relocated. Large brown cabinet and houndstooth chair is not part of design. My husband is a musician and we need to incorporate his gear into the design as he plays music every day (7 guitars, 1 amp stacked. foot pedal board and some auxiliary equipment such as headphone amp and headphones). Guitars could be hung on the wall, slat wall for example or keep the current stand. We spend the majority of our leisure time in this room and need sufficient storage for blankets, foam body rollers and other small every day use items (remotes). We don’t like clutter, everything should have a place, but we also like to live in our space. We use the sliding doors for fresh air only, no regular in out access. Our house is modern and our taste is contemporary yet edgy. We are also looking to incorporate some tables, artwork and area rug (rugs.ca) so need sizing and scale for this. Needs to be pet friendly, we have an alpha chihuahua (or so he thinks) who goes on the furniture. Questions are welcome.
Hallway small space redesign
Hello, there is a small space of about 1.5sqm that I would like to redesign. Looking for : 1. ideas on how that space can be used 2. sample design
Prepaid Prize








HOPE_CADD
Designer