2 Story Family Home Floor PlansBlind
inArchitectural Designheld byAndrew HolmesLast seen:
Contest Ended, Winner(s) have been selected.
-
Open
-
Choosing Finalist
-
Ended
Description:
Hi,I am seeking house floor plans for a 2 story family home to be built in Townsville Australia. The house should be approximately 380sqm in size and be designed to take into account our climate which is hot and humid in summer and mild winters. This would include capturing prevailing breezes, shading and room placement. Information about building in Townsville can be found herewww.townsville.qld.gov.au/water-waste-and-environment/sustainability/sustainable-housingunder the sustainable housing information kit.
The block is North facing and has parkland opposite, a picture can be found herewww.realestate.com.au/sold/property-residential+land-qld-burdell-202763674
I have also indluded the sizes of the block in the attachements
Our style for the house will be modern Hamptons/Tropical
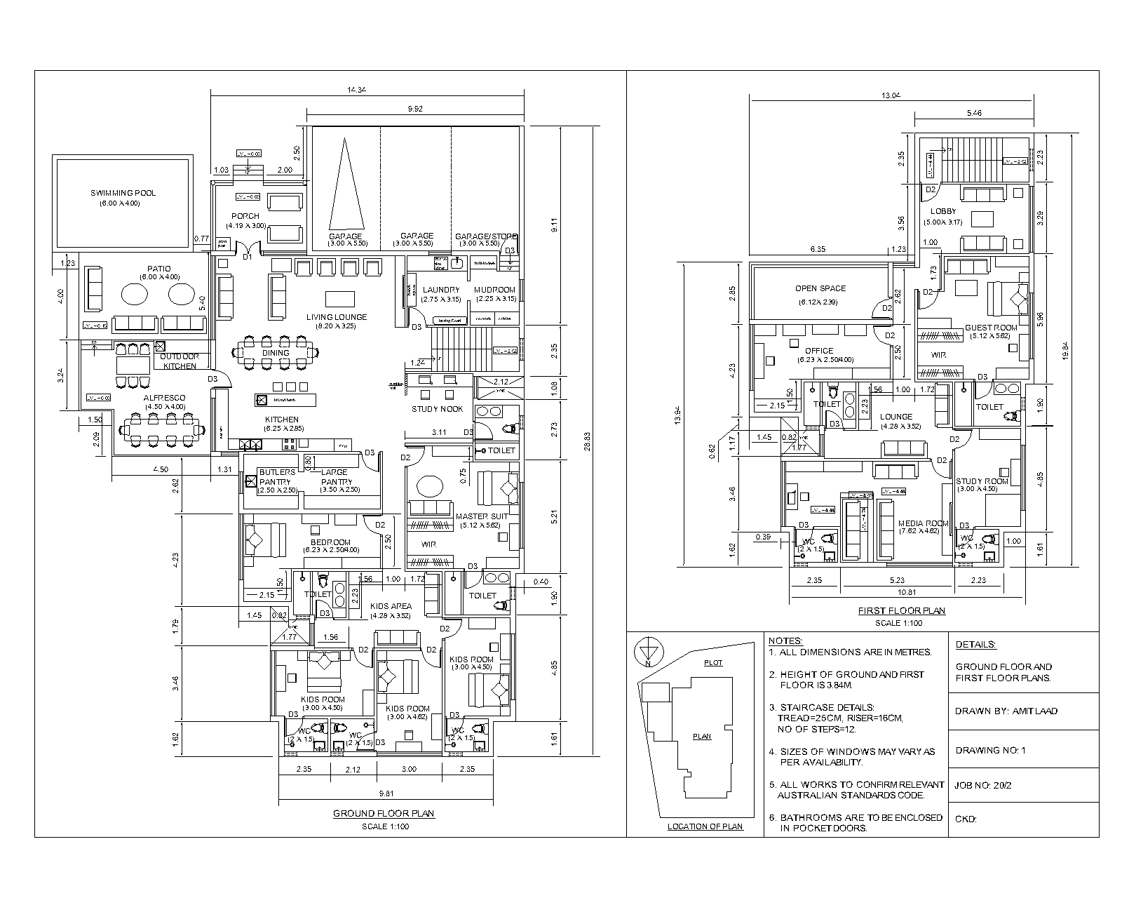
GROUND FLOOR:
Master suite: ensuite to have a bath tub (ideally overlooking something relaxing), double vanity. Good size WIR.
Kids area that can be closed off from the rest of the house to conceal mess: 3 kids rooms connecting to a kids retreat area. This area of the house should also have a bathroom with free standing bath tub and double vanity. Separate toilet/powder room as this will also be for visitors.
2 car garage with a 3rd car garage next to it to be used as workshop/storeroom
Mud room off the garage
Laundry off the mud room with decent bench space
Kitchen with servery to the outside dining alfresco area, decent island bench with small prep sink. Butlers pantry, large pantry with tonnes of shelving to see and have easy access to all food. Double sink and dishwasher in a bench under the servery. Island bench would ideall afford views to the outside patio and a TV in the lounge
Kitchen should connect to open plan small dining area and lounge room
Small inside dining area close to the kitchen (round table preference close to a window seat or bay window?) pic attached for inspiration.
Open plan lounge room in front of the kitchen for ease of entertaining (should also have a TV in view of kitchen). Im imagining this space to be quite decent, enough space so that we can fit in a decent group of people comfortably when entertaining.
Study nook close to kitchen, big enough for two kids to do homework at (perhaps that can be concealed?)
Big open patio area connecting with Alfresco with outdoor kitchen (or space for one) and plenty of room for lounging
Pool coming off patio 25 to 30000 litres
Nice front porch, enough for a big double swing so we can be comfy watching the kids on the road/path.
1ST FLOOR:
Study
Guest room with ensuite
Media Room
Please provide the files in the most compatible file formats and PDF's
Wants:
Consideration will be given to designs that are unique, designed for our climate and young family functionality.We may engage the winner to provide further architectural drawings such as elevations after this.
Don't Wants:
Living spaces on the western side
Additional Information
The house is to be light filled and airy, with consideration for high ceilings throughout the ground floor living/dining and kitchen and provisions for skylights in the kitchen.For block dimensions download the file 7 Capella Entrance which has the dimension of lot 8 which is circled. Bearing in mind there is a sewer line running parallel to the rear fence of the property with any fixed construction needing to be 3m from it I believe and there is a 6m setback on the block as per the site covernet.
We are also looking for as much yard space as possible for the children to play in on the eastern side of the house so the house shades the area from the western afternoon sun.
I have added two attachments from a local builder. Which I'm hoping will guide some redesigns.
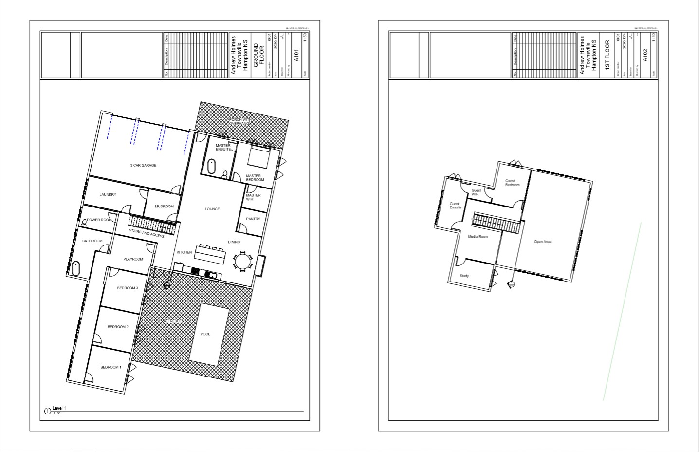
1st 2 Story Plan Things we liked
刘-寄存室连接ndry
- void
- likes the courtyard with bathtub in ensuite looking out to it. But may compromise and convert it to a butlers Pantry to save space.
- Front Porch
1st 2 story plan dislikes
- To big! Ground floor was approx 390m2 and 75ms for top
- no servery in kitchen to alfresco area.
2nd 2 Story plan likes
- Servery to built in dining table with bench seat on nib wall.
- The size reduction to 340m2
2nd 2 story plan dislikes
- Office is downstairs
- Mudroom and laundry don't connect
- The dining area, would prefer a nook with a bench seat on a window
- hard to place an outdoor kitchen under the patio
Entries
#182 Story House Designbyesratoygar
Download Files
- Adobe Acrobat Pro — 2 Story Famil House Design rev
- AutoCAD — 2 Story Family House -Sheet - 01 - Ground Floor Plan
- AutoCAD — 2 Story Family House -Sheet - 02 - First Floor Plan
- AutoCAD — 2 Story Family House -Sheet - 03 - Gross Building Area Calculations
- AutoCAD — 2 Story Family House -Sheet - 04 - Ground Floor Axonometric Plan
- AutoCAD — 2 Story Family House -Sheet - 06 - First Floor Axonometric Plan
Oct 17, 2020 16:11
#15Townsville 000-OP02byecooco
Download Files
- Sketchup Pro 2020 — Elevations
- AutoCAD 2017 — Townsville 000-OP02
- Image — View with Red Roof
- Image — SE View
- Image — NW View
- Image — NE View 2
- Adobe Acrobat Pro 2014 — Townsville UFP
- Adobe Acrobat Pro 2014 — Townsville GFP
- Adobe Acrobat Pro 2014 — Townsville Site Plan
- Adobe Acrobat Pro 2014 — Description
- Image — NE View
Oct 17, 2020 5:45
#6Townsville 000-OP01byecooco
Download Files
- Adobe Acrobat Pro 2014 — Descriptionn
- Image — Upper FP
- Image — Ground FP
- Image — Site Plan
- Image — Location
- AutoCAD 2017 — Townsville 000-OP01 AutoCAD 2D
- Adobe Acrobat Pro 2014 — Townsville 000-OP01 Upper Floor Plan
- Adobe Acrobat Pro 2014 — Townsville 000-OP01 Ground Floor Plan
- Adobe Acrobat Pro 2014 — Townsville 000-OP01 Site Plan
Oct 13, 2020 17:50
Discussion
Have also added another file for inspiration The+Hamptons. We like the design of this home even though it is single story.
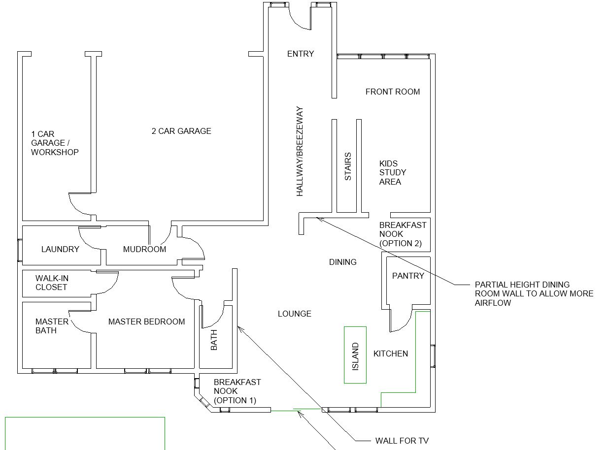
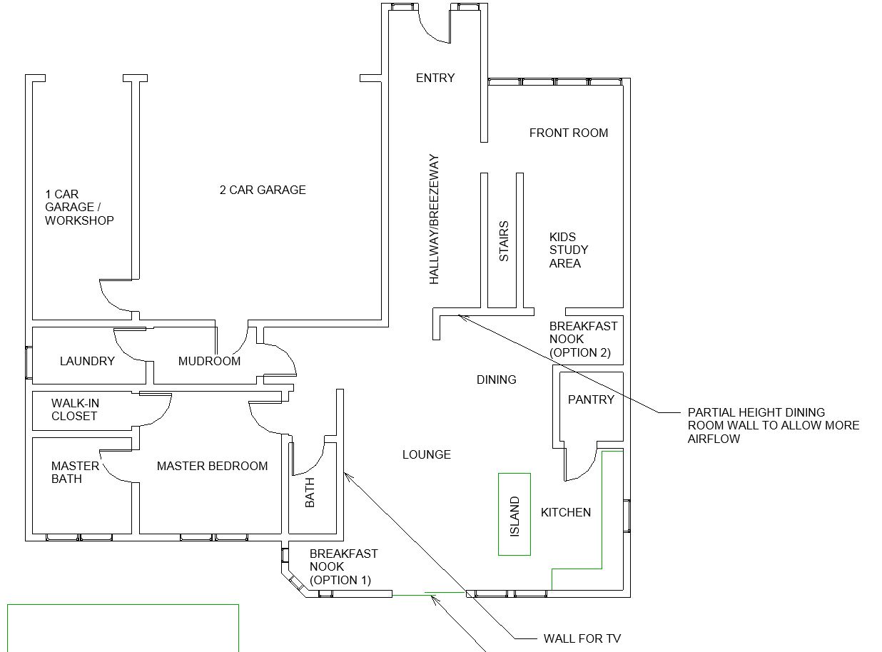
Jim81, have added some plans that we like and the things we dislike about them. Hope this helps.
Ecooco, not including robes
Ecooco, the kids rooms should be about 3.2m by 3.2m
Hi Andrew. My concern is about kids rooms. Room size has to be comfortable for any age, from very young to adult?
I'm almost done with design and please don't close competition early.
Thank you
I'm almost done with design and please don't close competition early.
Thank you
Hi Derrickarbiol, The road side is north
Hello Mr Holmes,
I would like to ask where is the North side of the property?
Thank you
I would like to ask where is the North side of the property?
Thank you
The contest is a little light on payout. "Nothing more than floor plans" for 4,000 S.F. takes a minimum of a week to provide anything noteworthy. Then, if you're off base then it's wasted time. A floor plan you like (but not copy) off the internet would make things a little more simple.
Hi TDT, please download the file 7 Capella Entrance which has the dimension of lot 8 which is circled. Bearing in mind there is a sewer line running parallel to the rear fence of the property with any fixed construction needing to be 3m from it I believe and there is a 6m setback on the block as per the site covernet.
I see that the lot is listed as 1019 sq. m. but do you have the length and width of the property? I don't want to make the house too wide for the site.
Keve, What would you suggest for nothing more than floor plans? As I described in the job I will need further plans on the sucessful design and will obviously pay further for that work to be completed.
Hi Amerk is there anything further that you need?
People wanting to get ideas on a whole house bid for less than $200! Doesn't even cover cost to design.
Hello, interesting job. i would happy to work on it
Similar Contests on Cad Crowd
Residential Property
Implement a 3D design of my residential house plans including interior and exterior features.
Home Expansion/Addition
Would like to expand kitchen, add large great room with high ceilings possibly vaulted, with back porch and grilling area, and pool. Would like back porch to span across entire back of the house over looking the pool area. Pool should be screened in.
Luxury House Aquarium Fish Tank
I would like a luxury glass acrylic house for a betta fish aquarium tank in the exact same shape of house picture below. I would like the house, roof and railing is all see through glass. Inside will be shaped like a loft style. Floor level a glass couch and tv, glass steps that lead upstairs and a glass bed on 2nd floor. You can add colour to the glass couch, tv and bed if it looks ok. Remember this tank for a betta fighting fish so it needs to be in a way where it can swim upstairs and downstairs. Roof will be a lift able top for I can do water change for the fish and take it out. I also attached my fish top for example I would like air space at the top and also where I can feed the fish. I wouldn't need no filter better fish doesn't need nothing to survive. Size: 7 ½ inches long and 8 inches high you can change measurements in height if you like but not too tall to sit on an office desk. I want length stay the same. Logo attached want it engraved on top of roof. Would like roof to keep flat shaped.
New House Floorplan
We are seeking a 2d floorplan for a new house. Your design response should consider: 1. The attached brief 2. The attached site plan (pdf and dwg) If the brief is unclear or incomplete, please let me know and I will adjust it or provide clarity. There is flexibility to move some elements between rooms - so if you have have suggestions or recommended changes, please let me know. The design should provide a floorplan for the house and landscaped areas. You can use any software you wish. However, designs must be provided to scale in PDF format such that they can be printed on A3 paper. The scale must be shown on the drawing.
Yacht Interior Design
我考虑购买游艇项目完成一半ect and it will need significant modifications if I do. I would like to find some designers I can work with for the redesign work on the interior and some exterior styling.
Prepaid Prize


















Andrew Holmes
Buyer