Single-Family Home Addition ConceptBlind
inArchitectural Designheld byHallMunnLast seen:
Contest Ended, Winner(s) have been selected.
-
Open
-
Choosing Finalist
-
Ended
Description:
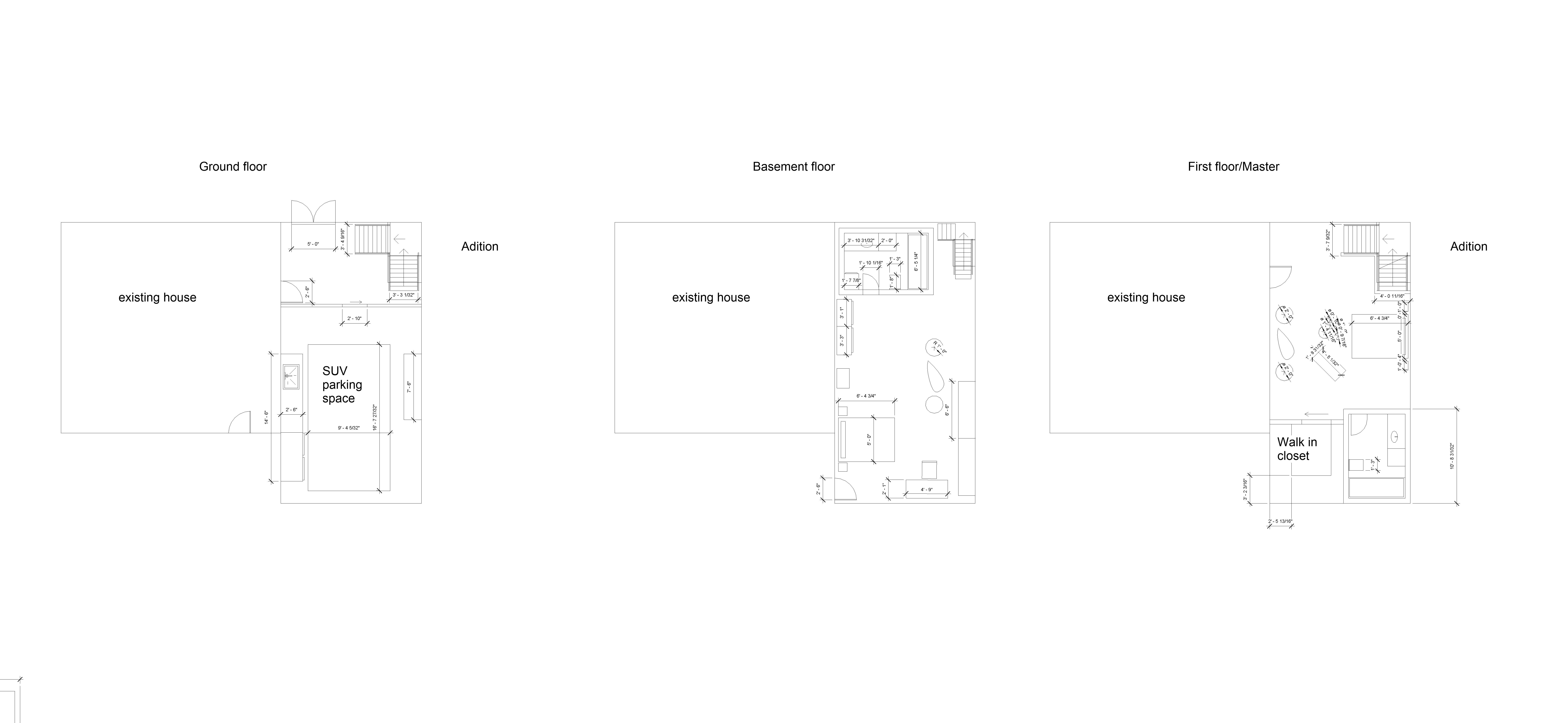
A concept design for a single-family home addition project consisting of four project elements:1) Back door & Deck – Addition of a rear door to the back yard (right side if facing the house) and a deck. Door can be a maximum of 7ft 8in tall and 8ft wide. Deck can be a maximum of 22ft wide and 12ft 6in deep. Looking for a rear kid-friendly and kid-durable entertaining space concept that helps to bring the outdoors in, while promoting energy conservation. Include appropriate lighting and outdoor electrical power sources. Additional regarding of the back yard to create flat space, as able, without sacrificing existing trees.
2) Right-side Addition – Addition of a three-level addition to the right (North) side of the house (when facing house from the street). Looking for a concept that blends seamlessly into the size and style of the main structure. Addition is a maximum of 16ft wide and 32ft long, beginning at the back of the house and extending a maximum of 8ft in front of the main house structure. House sits on a sloping grade – first floor is roughly between 24in (back corner) to 40in (front corner) off ground level. Three level addition includes:
a. Basement bedroom – Requires built in closet and at least one egress window. Ceiling height must be at least 8ft (presume recess lighting)
b. 1st floor garage – Looking for concept large enough to accommodate an SUV plus storage, with a double door opening to the backyard. Will require steps up to back yard if additional grading is proposed (per item 1).
c. 2nd floor master bedroom/bath – Looking for a concept that includes a “medium” sized master bath/en suite, and a closet large enough to serve 2+ adults
3) New Porch – Addition of a large porch extending from the left side of the new garage/addition (item 2 above) along the entire front of the house and wrapping into the new screened in porch (item 4 below). Looking for a concept that blends seamlessly into the size and style of the main structure, while presenting a level of comfort and style as its curb appeal. Porch can extend a maximum of 8ft from the front of the house.
4) Left-side Addition – Excavation of an additional below grade storage/laundry room on the left side of the house (when facing house from the street), and a wide walk out egress stairway from the basement to the back yard. Addition of a screened in porch at grade/first floor level. Below grade room/porch/egress stairs can extend a maximum of 7ft from the side of the house. Below grade room should have both a door into the basement and a separate external entrance to the back yard/egress stairway. First floor screened in porch should have an entrance from the front porch and a separate entrance into the main house. Addition should be capable of safely sustaining the weight of a future second story addition. Appropriate water mitigation measures should be included for all sub-grade components and stairways.
Additional pictures and info can be provided upon request.
Wants:
• How well the four project elements are pulled together to appear like they were part of the original house structure, while adding a sense of comfort, elegance, and style.• How well the proposed concept creates a more livable, comfortable, and usable space to support a young family of 6 + 1 grandparent.
• How well the proposed concept demonstrates a measurable increase in energy efficiency and conservation.
Winner should provide both 2D illustrations and a 3D virtual tour rendering of the concept proposal.
Don't Wants:
Design concepts that don’t fit the original model and overall structure of the house, or require a significant investment to remodel the existing structure.
Ask for Sample:
Looking for a design concept that can then be turned into permit-ready/construction-ready drawings through an additional project upon choosing the winner.
File Size Limit:
5 MB - 9.9 MB
Software:
- Sweet Home 3D (Free/compatible)
- AutoCAD (Latest/compatible)
Additional Information
Increasing the price and adding some additional time in hopes of seeing some more submissions come in.We are looking for you to use the references provided and match your design to our current home exterior aesthetic (color, style, etc.). We're looking for the *design* of the additions for this home to blend into the current home (vs. it being very obvious that the additions weren't part of the original house), and any entrances to additions (second floor room, basement room, etc.) need to have entrances from the current interior of the home (not the garage, for example). We will be following up this project with an additional one for the more details plans and specs - here we are just looking for the way that these new elements/additions could be added that all blend in together design-wise.
Really looking forward to seeing your work - thank you in advance for submitting your ideas!
Entries
#14Furnishes and designer details on the exterior aestheticbyArhitecto
Download Files
Jan 1, 2018 12:04
Discussion
requesting edit. Please see request via private message.
To get approximate site ground configuration may I have your address, so I could get it from Google Earth Pro.
RRM, submissions are requested in broadly compatible formats/standards (e.g.CAD formats: DGN, DWF, DWG, DXF, and SKP; Image formats: BMP, PNG, JPG, and TIF). Refit should be fine as long as final product is accessible by alternative software compatible with these standard formats.
Can I submit file in Revit Architecture format ?
,
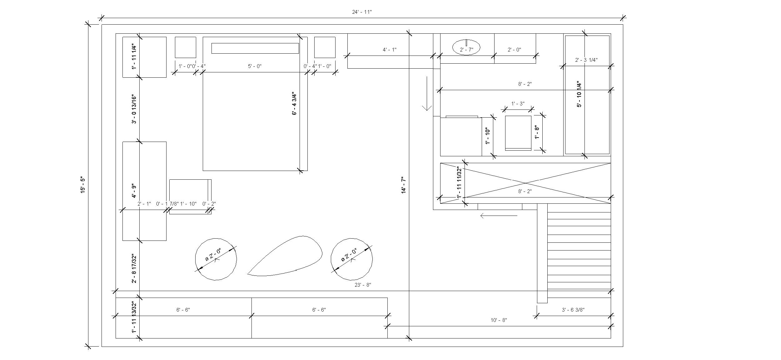
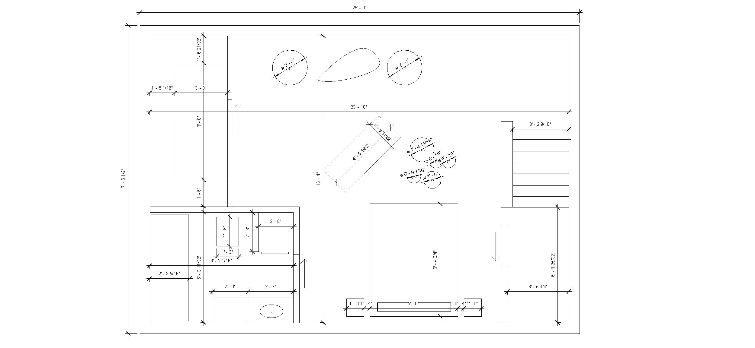
, Thank you for the submission. Could you please refine your submission of the interior sections to align with the current layout of the house (e.g., entrance to the master and basement bedrooms would not come from the garage)? Current floor plans can be found in the attachments. Could you also provide a basic 2D floor plan with proposed room/section sizes in ft? Thanks.
Mr. Mehta, could you please specify your preferred software, and if it offers a 3D virtual tour presentation option?
If you required 3d file only to view then i will provide the 3D pdf. So that i can design it on other software rather than autocad.
Sweet home 3D is not required for submission. Any free downloadable virtual design software tool is sufficient as long as it will allow us to view the file without software purchase.
Similar Contests on Cad Crowd
Grumpy Chiken
I would like to get the best design to setup a lot in order to open a fried chicken franchise. The difficulty is that is a shared lot in which the back is an auto repair shop. Anything we can do to hide a little the auto repair shop will be a great plus in the design.
Barn House
This is a single story - loft barn design.
Home Elevations
Hello I have a floor plan for a house for my client in Texas. that i need some concepts drawn up for the exterior elevations and roof design in dwg format. I am open to Ideas that any architects have to add to the design. Traditional / colonial design would be great, a few guide lines: 11ft to 18ft plus Ceiling height. Single story house on a corner lot. Entry foyer facing corner with circular driveway. concrete slab Wood framing construction mix of stone and stucco Please do not hesitate to ask any questions. thanks
房子外观设计7天内
我们目前在完成的过程中design for a modern villa in the DACH (Germany/Austria/Switzerland) region. We are super happy with the front of the villa. We love the design there. However, we are not happy with the backside facade of the villa. The design misses a clear structure. There is some design element here and there. Windows are a bit randomly positioned from an outside perspective (from the inside it makes sense). So far there is no real light concept for the backside. The idea of the contest is to find our dream design for the backside of our villa. Let me provide some details. There is more in the presentation As can be seen from the floor plan we are planning the stairs with two skybridges (which means there is some space between floor and window) at the right side of the left part of the building. The idea was to have one big window that covers at least two floors. Currently the third floor which is the „Cube“ on the roof is slighthly moved back. We have also planned a small water area in front of the left part of the house so that there is a mini bridge leading to the entrance door (similar to the design of another villa we included in the presentation). There is a stairs going down to the basement where we have on the left a guest room and on the right the living/bed room of the nanny’s flat. Above that is the window to an office with library. The closed space left of it is a wall in the living room which could potentially also become a window. Above that the three windows are kids room / bathroom windows At the top in the cube the three windows are in the bathroom Now so far we have refrained from adding more windows since on the first floor we have on the left the walk-in dressing room where windows are not needed .Then at the top in the cube to the right there is far right the sauna and next to it we need the wall for some fitness device installations inside. Having said that there is always an option to have kind of fake windows where behind them there is a wall. The outcome of the competition should be some illustrations with ideas for the backside of the house also showing or highlighting some materials to be used. In addition some idea with regards to the construction leading to the basement would be welcome. How would that look best in terms of stairs, green area etc. Since we need to finalize the renderings soon, there is only a week time before ending the competition. All details an be found in the presentation including all floor plans. Please feel free to be creative. However the shape oft he building is a given.
1200 sqft apartment
I need a good design for a 1200 sqft apartment. The apartment must have 2 bedrooms with ensuite or shared bath, a guest bath ie sink & toilet, laundry area/room, kitchen, dining area, living room, clothes closets etc. Any and all ideas welcome. Top two designs win. See attached file for space. Note put in windows wherever you like except where noted. This is a second floor and stairs must remain as in the attached drawing.
Prepaid Prize
























HallMunn
Buyer